Images
Reverse
Layout
Specs
Estimate
Furniture
Print
To Top
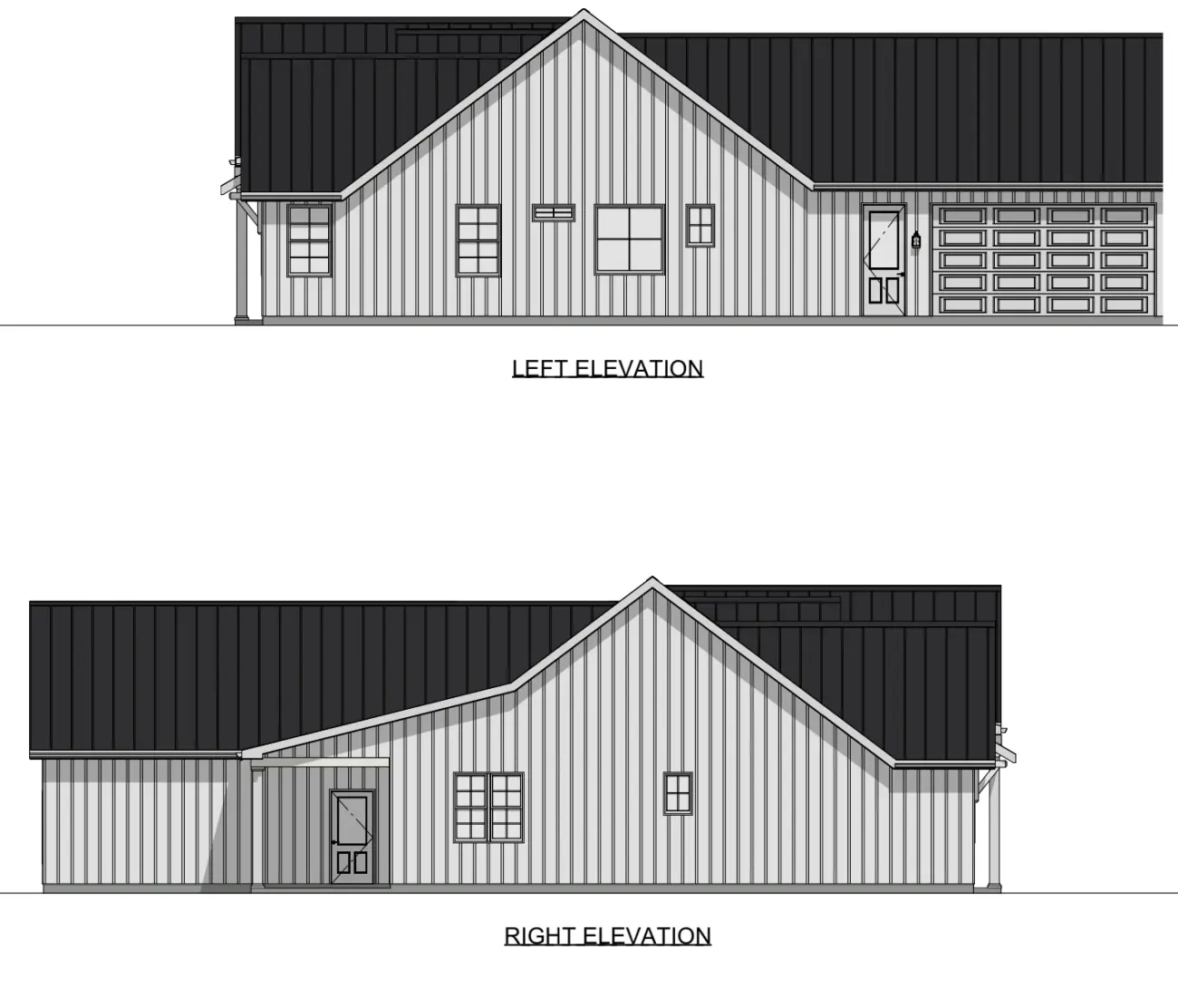
Rogersville Rendering
Rogersville Rendering
Rogersville Rendering
Rogersville | 50049 - Exclusive

Farmhouse Style House Plan | Rogersville

2491
Sq Ft
3
Bedrooms
3
Bathrooms
2
Bays
68' 0"
Width
67' 0"
Depth

Floor Plan Images

Looking for something specific? We'll customize any plan to match your needs. Get your free alteration quote →
Main Floor Layout
Rogersville Rendering

Plan Description

This charming farmhouse blends classic style with smart functionality, featuring a two-car side-load garage tucked discreetly at the rear to preserve timeless curb appeal. Two covered porches extend your living space outdoors, creating perfect spots for morning coffee, evening relaxation, or casual entertaining. From the outside in, this home feels welcoming, intentional, and designed for everyday comfort.


Step inside to a bright open-concept main living area that effortlessly connects the kitchen, dining, and living spaces. The kitchen shines with generous counter space and a large walk-in pantry, keeping everything organized and ready for gatherings big or small. Natural light fills the home, enhancing the warm farmhouse character while maintaining a spacious, airy feel.


Designed with real life in mind, this home features a large mudroom and laundry room that provide exceptional storage and organization right where you need it most. With three comfortable bedrooms, including a relaxing primary suite, and thoughtful details throughout, this farmhouse offers the perfect balance of beauty, efficiency, and livability—making it an ideal place to call home.

Construction Specifications

Basic Layout Information
Bedrooms 3
Bathrooms 3
Garage Bays 2
Square Footage Breakdown
Main Level 2491 Sq Ft
Total Finished Area 2491 Sq Ft
Garage 699 Sq Ft
Covered Areas (patios, porches, decks, etc) 777 Sq Ft
Exterior Dimensions
Width 68' 0"
Depth 67' 0"
Ridge Height 22' 0"
Default Construction Stats
Default Foundation Type Slab
Default Exterior Wall Construction 2x6
Roof Construction Method Trusses
Floor Construction Method I-Joists
Roof Pitches Primary 9/12
Main Level Ceiling Height 9'

Instant Cost to Build Estimate

Get a comprehensive cost estimate for building this plan. Our detailed quote includes all expenses, giving you a clear budget overview for your project.

Powered By Advanced House Plans ©

What's Included in a Plan Set?

Each set of home plans that we offer will provide you with the necessary information to build the home. There may be some adjustments necessary to the home plans or garage plans in order to comply with your state or county building codes. The following list shows what is included within each set of home plans that we sell.

Our blueprints include:

Cover Sheet: Shows the front elevation often times in a 3D color rendering and typical notes and requirements.

Cover Sheet

Exterior Elevations: Shows the front, rear and sides of the home including exterior materials, details and measurements

Exterior Finishes Sheet

Foundation Plans: will include a basement, crawlspace or slab depending on what is available for that home plan. (Please refer to the home plan's details sheet to see what foundation options are available for a specific home plan.) The foundation plan details the layout and construction of the foundation.

Foundation Plans Sheet

Floor Plans: Shows the placement of walls and the dimensions for rooms, doors, windows, stairways, etc. for each floor.

Electrical Plans: Shows the location of outlets, fixtures and switches. They are shown as a separate sheet to make the floor plans more legible.

Floor Plans and Electrical

Roof Plan

Roof Plans

Typical Wall Section, Stair Section, Cabinets

Typical Wall Section, Stair Section, Cabinets Sheet

If you have any additional questions about what you are getting in a plan set, contact us today.

Compare
You're saving $340 during our 20% off sale!
$1699
$1359
Apple Pay
Google Pay
Affirm Badge
AfterPay Badge

Upgrade Your Plan With Add-ons

Note: Add-ons may result in a longer turn-around time.