Images
Reverse
Layout
Specs
Estimate
Furniture
Print
To Top
Maple Glen Rendering
Maple Glen Rendering
Maple Glen Rendering
Maple Glen | 50011 - Exclusive
New: Steel kits now available for all Barndominium plans! Click here for more information.

Barndominium Style House Plan | Maple Glen

2171
Sq Ft
3
Bedrooms
2
Bathrooms
0
Bays
52' 0"
Width
48' 0"
Depth

Floor Plan Images

Looking for something specific? We'll customize any plan to match your needs. Get your free alteration quote →
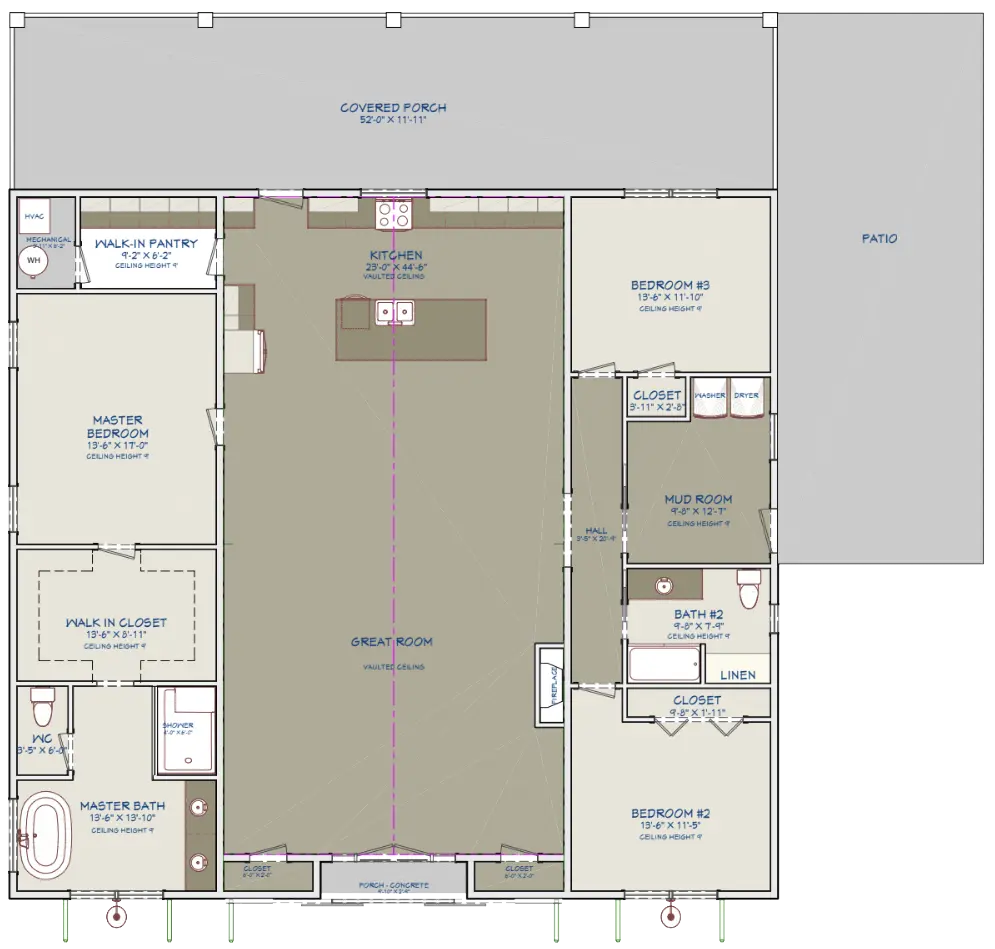
Main Floor Layout
Maple Glen Rendering

Plan Description

Picture a home where modern comfort meets rustic charm—a stunning 3-bedroom, 2-bathroom barndominium designed to elevate everyday living. Step inside and you’ll immediately feel the open, airy flow of the large open concept main area, where living, dining, and kitchen spaces blend seamlessly under soaring ceilings, creating an inviting heart of the home that’s ideal for entertaining, family time, or relaxed weekend living.


Your everyday living is made effortless in this thoughtfully designed layout. The chef-ready kitchen anchors the main area with generous counter space, a large island for casual meals and gatherings, and sightlines that keep you connected to conversation and activity throughout the home. Whether hosting friends or enjoying a quiet night in, this open concept space adapts to the moment with ease and style.


Retreat at the end of the day to the luxurious master suite, a private haven offering room to unwind, generous closet space, and an ensuite bath designed for comfort and relaxation. Two additional bedrooms provide flexibility for family, guests, or a home office—each crafted with comfort and quality in mind. Step out back onto the spacious patio for fresh air, backyard BBQs, or evening stargazing; it’s an extension of your living space that brings the best of indoor-outdoor living together. This barndominium isn’t just a home—it’s a place where life’s best moments unfold.

Construction Specifications

Basic Layout Information
Bedrooms 3
Bathrooms 2
Garage Bays 0
Square Footage Breakdown
Main Level 2171 Sq Ft
Total Finished Area 2171 Sq Ft
Covered Areas (patios, porches, decks, etc) 650 Sq Ft
Exterior Dimensions
Width 52' 0"
Depth 48' 0"
Ridge Height 27' 10"
Default Construction Stats
Default Foundation Type Slab
Default Exterior Wall Construction 2x6
Roof Construction Method Trusses
Floor Construction Method I-Joists
Roof Pitches Primary 8/12
Main Level Ceiling Height 9'

Instant Cost to Build Estimate

Get a comprehensive cost estimate for building this plan. Our detailed quote includes all expenses, giving you a clear budget overview for your project.

Powered By Advanced House Plans ©

What's Included in a Plan Set?

Each set of home plans that we offer will provide you with the necessary information to build the home. There may be some adjustments necessary to the home plans or garage plans in order to comply with your state or county building codes. The following list shows what is included within each set of home plans that we sell.

Our blueprints include:

Cover Sheet: Shows the front elevation often times in a 3D color rendering and typical notes and requirements.

Cover Sheet

Exterior Elevations: Shows the front, rear and sides of the home including exterior materials, details and measurements

Exterior Finishes Sheet

Foundation Plans: will include a basement, crawlspace or slab depending on what is available for that home plan. (Please refer to the home plan's details sheet to see what foundation options are available for a specific home plan.) The foundation plan details the layout and construction of the foundation.

Foundation Plans Sheet

Floor Plans: Shows the placement of walls and the dimensions for rooms, doors, windows, stairways, etc. for each floor.

Electrical Plans: Shows the location of outlets, fixtures and switches. They are shown as a separate sheet to make the floor plans more legible.

Floor Plans and Electrical

Roof Plan

Roof Plans

Typical Wall Section, Stair Section, Cabinets

Typical Wall Section, Stair Section, Cabinets Sheet

If you have any additional questions about what you are getting in a plan set, contact us today.

Compare
You're saving $320 during our 20% off sale!
$1599
$1279
Apple Pay
Google Pay
Affirm Badge
AfterPay Badge

Upgrade Your Plan With Add-ons

Note: Add-ons may result in a longer turn-around time.