Images
Reverse
Layout
Specs
Estimate
Furniture
Print
To Top
Magnolia Park Rendering
Magnolia Park Rendering
Magnolia Park Rendering
Magnolia Park | 50013 - Exclusive
New: Steel kits now available for all Barndominium plans! Click here for more information.

Barndominium Style House Plan | Magnolia Park

2484
Sq Ft
3
Bedrooms
3
Bathrooms
2
Bays
80' 0"
Width
58' 0"
Depth

Floor Plan Images

Looking for something specific? We'll customize any plan to match your needs. Get your free alteration quote →
Main Floor Layout
Magnolia Park Rendering
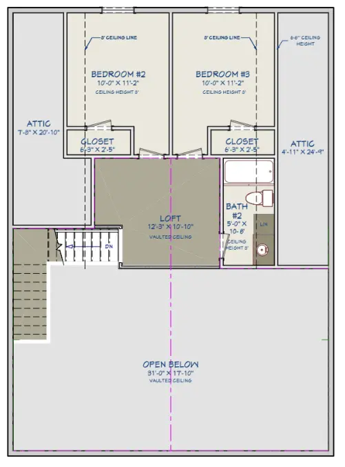
Second Floor Layout
Magnolia Park Rendering

Plan Description

Magnolia Park is a 1.5-story Modern Farmhouse designed to feel welcoming, efficient, and timeless. The exterior blends classic board-and-batten siding with a crisp metal roof, while a simple gable highlights the inviting double front doors—creating instant curb appeal without feeling overdone.

Inside, the layout opens up to a spacious great room that flows seamlessly into the dining area and kitchen, making the main level ideal for everyday living and entertaining. Just off the central living space, the private master suite offers a relaxing retreat with its own bathroom and walk-in closet.

Upstairs, a loft overlooks the great room below, adding openness and flexibility—perfect for a second living area, office, or reading nook. Two additional bedrooms share a full bathroom, and dedicated storage space keeps everything organized and out of sight. With its smart use of space and classic farmhouse character, Magnolia Park delivers comfortable living with modern appeal.

Construction Specifications

Basic Layout Information
Bedrooms 3
Bathrooms 3
Garage Bays 2
Square Footage Breakdown
Main Level 1984 Sq Ft
Second Level 500 Sq Ft
Total Finished Area 2484 Sq Ft
Garage 576 Sq Ft
Covered Areas (patios, porches, decks, etc) 447 Sq Ft
Exterior Dimensions
Width 80' 0"
Depth 58' 0"
Ridge Height 29' 6"
Default Construction Stats
Default Foundation Type Slab
Default Exterior Wall Construction 2x6
Roof Construction Method Trusses
Floor Construction Method I-Joists
Roof Pitches Primary 12/12
Main Level Ceiling Height 10'
Second Level Ceiling Height 8'

Instant Cost to Build Estimate

Get a comprehensive cost estimate for building this plan. Our detailed quote includes all expenses, giving you a clear budget overview for your project.

Powered By Advanced House Plans ©

What's Included in a Plan Set?

Each set of home plans that we offer will provide you with the necessary information to build the home. There may be some adjustments necessary to the home plans or garage plans in order to comply with your state or county building codes. The following list shows what is included within each set of home plans that we sell.

Our blueprints include:

Cover Sheet: Shows the front elevation often times in a 3D color rendering and typical notes and requirements.

Cover Sheet

Exterior Elevations: Shows the front, rear and sides of the home including exterior materials, details and measurements

Exterior Finishes Sheet

Foundation Plans: will include a basement, crawlspace or slab depending on what is available for that home plan. (Please refer to the home plan's details sheet to see what foundation options are available for a specific home plan.) The foundation plan details the layout and construction of the foundation.

Foundation Plans Sheet

Floor Plans: Shows the placement of walls and the dimensions for rooms, doors, windows, stairways, etc. for each floor.

Electrical Plans: Shows the location of outlets, fixtures and switches. They are shown as a separate sheet to make the floor plans more legible.

Floor Plans and Electrical

Roof Plan

Roof Plans

Typical Wall Section, Stair Section, Cabinets

Typical Wall Section, Stair Section, Cabinets Sheet

If you have any additional questions about what you are getting in a plan set, contact us today.

Compare
You're saving $340 during our 20% off sale!
$1699
$1359
Apple Pay
Google Pay
Affirm Badge
AfterPay Badge

Upgrade Your Plan With Add-ons

Note: Add-ons may result in a longer turn-around time.