Images
Reverse
Layout
Specs
Estimate
Furniture
Print
To Top
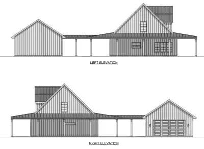
Lynnville Rendering
Lynnville Rendering
Lynnville Rendering
Lynnville | 50037 - Exclusive

Farmhouse Style House Plan | Lynnville

2192
Sq Ft
3
Bedrooms
3
Bathrooms
2
Bays
62' 0"
Width
92' 0"
Depth

Floor Plan Images

Looking for something specific? We'll customize any plan to match your needs. Get your free alteration quote →
Main Floor Layout
Lynnville Rendering
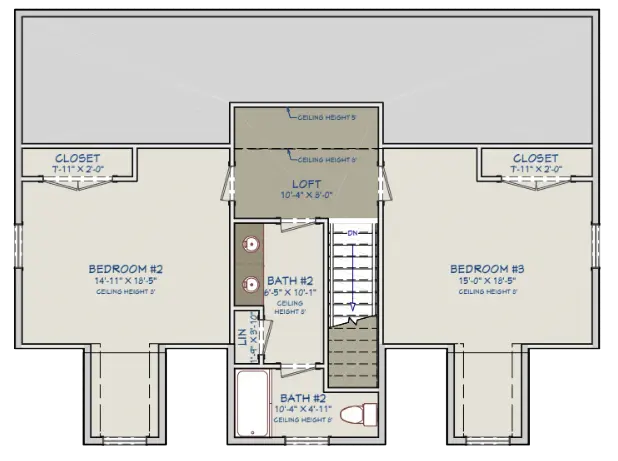
Second Floor Layout
Lynnville Rendering

Plan Description

This beautifully designed farmhouse makes a lasting first impression with its expansive wrap-around porch, offering timeless charm and endless opportunities for outdoor living. From rocking-chair mornings to evening conversations under the stars, this porch wraps the home in warmth and character while enhancing curb appeal from every angle. A two-car detached garage adds both flexibility and visual balance, completing the classic farmhouse aesthetic.


Step inside to an open-concept main area that feels bright, welcoming, and perfectly suited for modern living. The seamless flow between the kitchen and living spaces creates an ideal setting for entertaining or relaxed everyday life, while large windows bring in natural light and connect the indoors to the surrounding landscape.


The main-level master suite provides a private retreat, thoughtfully designed for comfort and tranquility. With ample space, a well-appointed bathroom, and separation from the secondary bedrooms, it offers the peace and privacy homeowners desire at the end of the day.


Upstairs, two additional bedrooms share the second level, creating a cozy and functional space for family members or guests. A large pantry on the main floor adds exceptional storage and organization, making daily routines easier and more efficient. With its smart layout, inviting outdoor spaces, and classic farmhouse appeal, this home delivers both style and livability in a truly timeless design.

Construction Specifications

Basic Layout Information
Bedrooms 3
Bathrooms 3
Garage Bays 2
Square Footage Breakdown
Main Level 1428 Sq Ft
Second Level 764 Sq Ft
Total Finished Area 2192 Sq Ft
Garage 576 Sq Ft
Covered Areas (patios, porches, decks, etc) 2049 Sq Ft
Exterior Dimensions
Width 62' 0"
Depth 92' 0"
Ridge Height 26' 0"
Default Construction Stats
Default Foundation Type Slab
Default Exterior Wall Construction 2x6
Roof Construction Method Trusses
Floor Construction Method I-Joists
Roof Pitches Primary 12/12
Main Level Ceiling Height 9'
Second Level Ceiling Height 8'

Instant Cost to Build Estimate

Get a comprehensive cost estimate for building this plan. Our detailed quote includes all expenses, giving you a clear budget overview for your project.

Powered By Advanced House Plans ©

What's Included in a Plan Set?

Each set of home plans that we offer will provide you with the necessary information to build the home. There may be some adjustments necessary to the home plans or garage plans in order to comply with your state or county building codes. The following list shows what is included within each set of home plans that we sell.

Our blueprints include:

Cover Sheet: Shows the front elevation often times in a 3D color rendering and typical notes and requirements.

Cover Sheet

Exterior Elevations: Shows the front, rear and sides of the home including exterior materials, details and measurements

Exterior Finishes Sheet

Foundation Plans: will include a basement, crawlspace or slab depending on what is available for that home plan. (Please refer to the home plan's details sheet to see what foundation options are available for a specific home plan.) The foundation plan details the layout and construction of the foundation.

Foundation Plans Sheet

Floor Plans: Shows the placement of walls and the dimensions for rooms, doors, windows, stairways, etc. for each floor.

Electrical Plans: Shows the location of outlets, fixtures and switches. They are shown as a separate sheet to make the floor plans more legible.

Floor Plans and Electrical

Roof Plan

Roof Plans

Typical Wall Section, Stair Section, Cabinets

Typical Wall Section, Stair Section, Cabinets Sheet

If you have any additional questions about what you are getting in a plan set, contact us today.

Compare
You're saving $320 during our 20% off sale!
$1599
$1279
Apple Pay
Google Pay
Affirm Badge
AfterPay Badge

Upgrade Your Plan With Add-ons

Note: Add-ons may result in a longer turn-around time.