Images
Reverse
Layout
Specs
Estimate
Furniture
Print
To Top
Girard Heights Rendering
Girard Heights Rendering
Girard Heights Rendering
Girard Heights Rendering
+16
Girard Heights | 30528

Tudor Style House Plan | Girard Heights

1936
Sq Ft
3
Bedrooms
3
Bathrooms
2
Bays
52' 4"
Width
40' 0"
Depth

Floor Plan Images

Looking for something specific? We'll customize any plan to match your needs. Get your free alteration quote →
Main Floor Layout
Girard Heights Rendering
Second Floor Layout
Girard Heights Rendering
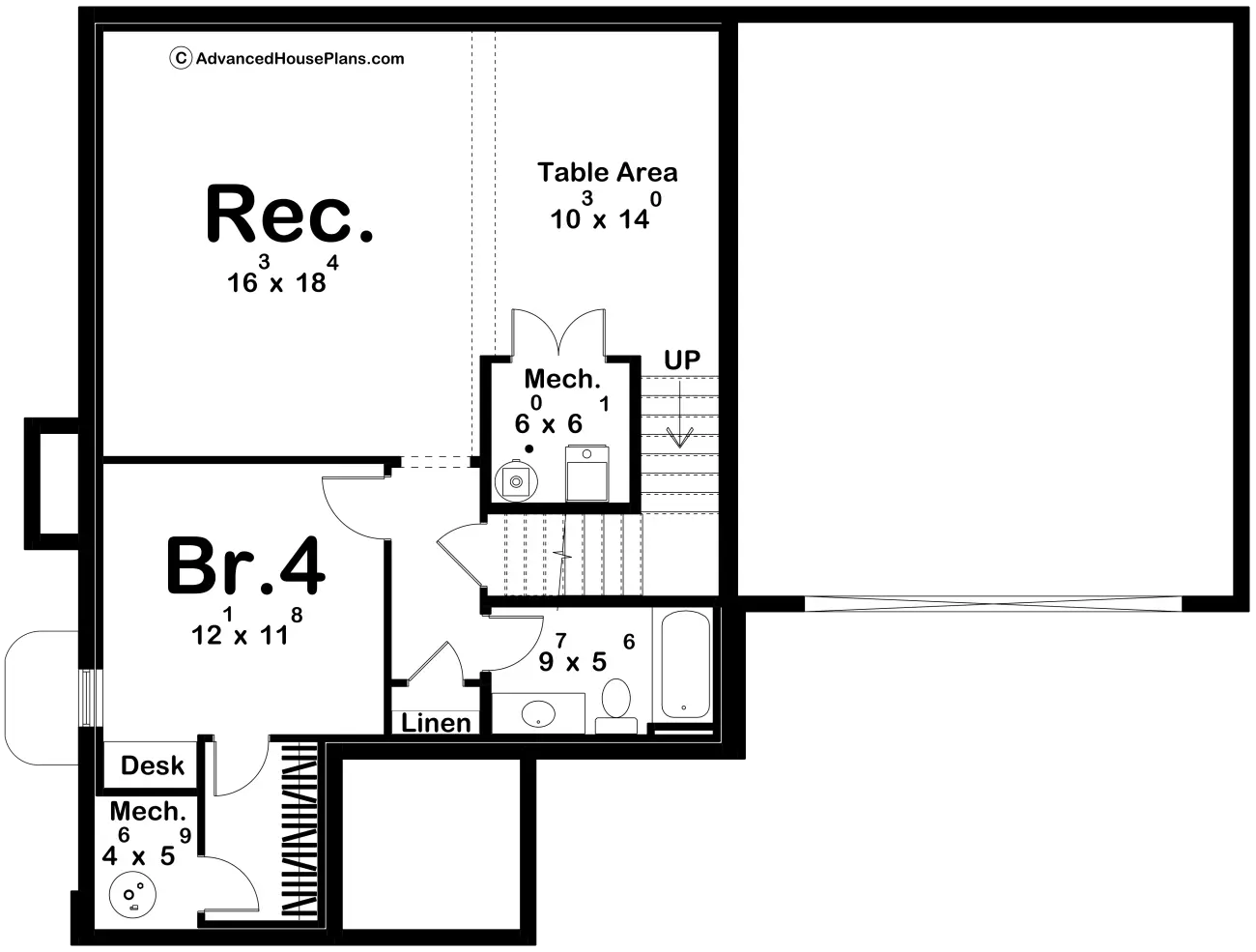
Optional Basement Floor Layout
Girard Heights Rendering

Plan Video Tour

Plan Description

The Girard Heights is a striking 3 bed, 3 bath Tudor-style home with a 2-car garage and timeless curb appeal. Its brick front façade, decorative trim, and classic chimney create a rich, storybook exterior that stands out in any neighborhood. Inside, the open main floor layout flows beautifully and includes a bright sunroom, perfect for relaxing year-round, along with a mudroom featuring a built-in desk for added function. Upstairs, all three bedrooms and the laundry room are thoughtfully placed together for convenience, making the Girard Heights a perfect blend of character and everyday livability.

Construction Specifications

Basic Layout Information
Bedrooms 3
Bathrooms 3
Garage Bays 2
Square Footage Breakdown
Main Level 1004 Sq Ft
Second Level 932 Sq Ft
Total Finished Area 1936 Sq Ft
Garage 565 Sq Ft
Covered Areas (patios, porches, decks, etc) 64 Sq Ft
Optional Basement Area (Not included in total sq ft) 792 Sq Ft
Exterior Dimensions
Width 52' 4"
Depth 40' 0"
Ridge Height 29' 6"
Default Construction Stats
Default Foundation Type Basement
Default Exterior Wall Construction 2x4
Roof Construction Method Rafter (Stick Built)
Floor Construction Method I-Joists
Roof Pitches Primary 8/12, Secondary 16/12, 6/12
Foundation Wall Height 9'
Main Level Ceiling Height 9'
Second Level Ceiling Height 8'

Instant Cost to Build Estimate

Get a comprehensive cost estimate for building this plan. Our detailed quote includes all expenses, giving you a clear budget overview for your project.

Powered By Advanced House Plans ©

What's Included in a Plan Set?

Each set of home plans that we offer will provide you with the necessary information to build the home. There may be some adjustments necessary to the home plans or garage plans in order to comply with your state or county building codes. The following list shows what is included within each set of home plans that we sell.

Our blueprints include:

Cover Sheet: Shows the front elevation often times in a 3D color rendering and typical notes and requirements.

Cover Sheet

Exterior Elevations: Shows the front, rear and sides of the home including exterior materials, details and measurements

Exterior Finishes Sheet

Foundation Plans: will include a basement, crawlspace or slab depending on what is available for that home plan. (Please refer to the home plan's details sheet to see what foundation options are available for a specific home plan.) The foundation plan details the layout and construction of the foundation.

Foundation Plans Sheet

Floor Plans: Shows the placement of walls and the dimensions for rooms, doors, windows, stairways, etc. for each floor.

Electrical Plans: Shows the location of outlets, fixtures and switches. They are shown as a separate sheet to make the floor plans more legible.

Floor Plans and Electrical

Roof Plan

Roof Plans

Typical Wall Section, Stair Section, Cabinets

Typical Wall Section, Stair Section, Cabinets Sheet

If you have any additional questions about what you are getting in a plan set, contact us today.

Compare
You're saving $225 during our 15% off sale!
$1499
$1274
Apple Pay
Google Pay
Affirm Badge
AfterPay Badge

Upgrade Your Plan With Add-ons

Note: Add-ons may result in a longer turn-around time.

Note: The material list is for estimation purposes only.