Images
Reverse
Layout
Specs
Estimate
Furniture
Print
To Top
Eagleville Rendering
Eagleville Rendering
Eagleville Rendering
EXCLUSIVE
Eagleville Rendering
+4
Eagleville | 50034 - Exclusive
New: Steel kits now available for all Barndominium plans! Click here for more information.

Barndominium Style House Plan | Eagleville

3303
Sq Ft
4
Bedrooms
4
Bathrooms
3
Bays
50' 0"
Width
40' 0"
Depth

Floor Plan Images

Looking for something specific? We'll customize any plan to match your needs. Get your free alteration quote →
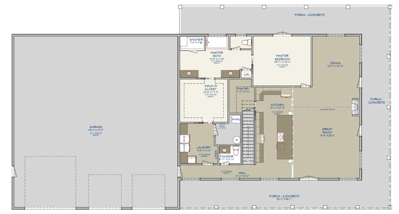
Main Floor Layout
Eagleville Rendering
Second Floor Layout
Eagleville Rendering

Plan Description

Let me introduce you to Eagleville — a 4-bedroom, 3.5-bathroom barndominium that perfectly marries modern living with timeless charm. From the moment you arrive, the expansive wrap-around porch welcomes you with endless possibilities for morning coffee, evening gatherings, or peaceful moments surrounded by fresh air and scenic views. With an impressive attached garage, you’ll enjoy convenience and storage galore — ideal for vehicles, outdoor gear, and all your hobbies.


Step inside to an open-concept main living area where space, light, and design come together beautifully. The layout was made for daily living and entertaining alike, with clean sightlines from the living room to the dining space and kitchen. Oversized windows draw in natural light, creating an inviting atmosphere that’s airy and bright. This thoughtful design ensures that every part of the home feels connected and welcoming.


The heart of this home is the large kitchen, complete with a generous island for meal prep, casual dining, and gathering with friends. Tucked just off the kitchen, a spacious pantry keeps everything organized and within reach — perfect for family meals and holiday hosting. Whether you’re whipping up weeknight dinners or entertaining guests, this kitchen is both functional and stylish.


When it’s time to unwind, the luxurious master suite awaits — a private retreat designed for comfort and relaxation with room to breathe and room to unwind. Upstairs, the second-level loft adds flexible living space that’s perfect for a media lounge, playroom, or home office, surrounded by additional bedrooms that provide privacy and versatility. This barndominium isn’t just a home — it’s a lifestyle built for modern comfort, effortless style, and lasting memories.

Construction Specifications

Basic Layout Information
Bedrooms 4
Bathrooms 4
Garage Bays 3
Square Footage Breakdown
Main Level 2017 Sq Ft
Second Level 1286 Sq Ft
Total Finished Area 3303 Sq Ft
Garage 2190 Sq Ft
Covered Areas (patios, porches, decks, etc) 1257 Sq Ft
Exterior Dimensions
Width 50' 0"
Depth 40' 0"
Ridge Height 31' 0"
Default Construction Stats
Default Foundation Type Slab
Default Exterior Wall Construction 2x6
Roof Construction Method Trusses
Floor Construction Method I-Joists
Roof Pitches Primary 6/12
Main Level Ceiling Height 10'
Second Level Ceiling Height 9'

Instant Cost to Build Estimate

Get a comprehensive cost estimate for building this plan. Our detailed quote includes all expenses, giving you a clear budget overview for your project.

Powered By Advanced House Plans ©

What's Included in a Plan Set?

Each set of home plans that we offer will provide you with the necessary information to build the home. There may be some adjustments necessary to the home plans or garage plans in order to comply with your state or county building codes. The following list shows what is included within each set of home plans that we sell.

Our blueprints include:

Cover Sheet: Shows the front elevation often times in a 3D color rendering and typical notes and requirements.

Cover Sheet

Exterior Elevations: Shows the front, rear and sides of the home including exterior materials, details and measurements

Exterior Finishes Sheet

Foundation Plans: will include a basement, crawlspace or slab depending on what is available for that home plan. (Please refer to the home plan's details sheet to see what foundation options are available for a specific home plan.) The foundation plan details the layout and construction of the foundation.

Foundation Plans Sheet

Floor Plans: Shows the placement of walls and the dimensions for rooms, doors, windows, stairways, etc. for each floor.

Electrical Plans: Shows the location of outlets, fixtures and switches. They are shown as a separate sheet to make the floor plans more legible.

Floor Plans and Electrical

Roof Plan

Roof Plans

Typical Wall Section, Stair Section, Cabinets

Typical Wall Section, Stair Section, Cabinets Sheet

If you have any additional questions about what you are getting in a plan set, contact us today.

Compare
You're saving $380 during our 20% off sale!
$1899
$1519
Apple Pay
Google Pay
Affirm Badge
AfterPay Badge

Upgrade Your Plan With Add-ons

Note: Add-ons may result in a longer turn-around time.