Images
Reverse
Layout
Specs
Estimate
Furniture
Print
To Top
Dyersburg Rendering
Dyersburg Rendering
Dyersburg Rendering
Dyersburg | 50003 - Exclusive
New: Steel kits now available for all Barndominium plans! Click here for more information.

2 Story Barndominium Style House Plan | Dyersburg

2010
Sq Ft
3
Bedrooms
2
Bathrooms
0
Bays
40' 0"
Width
40' 0"
Depth

Floor Plan Images

Looking for something specific? We'll customize any plan to match your needs. Get your free alteration quote →
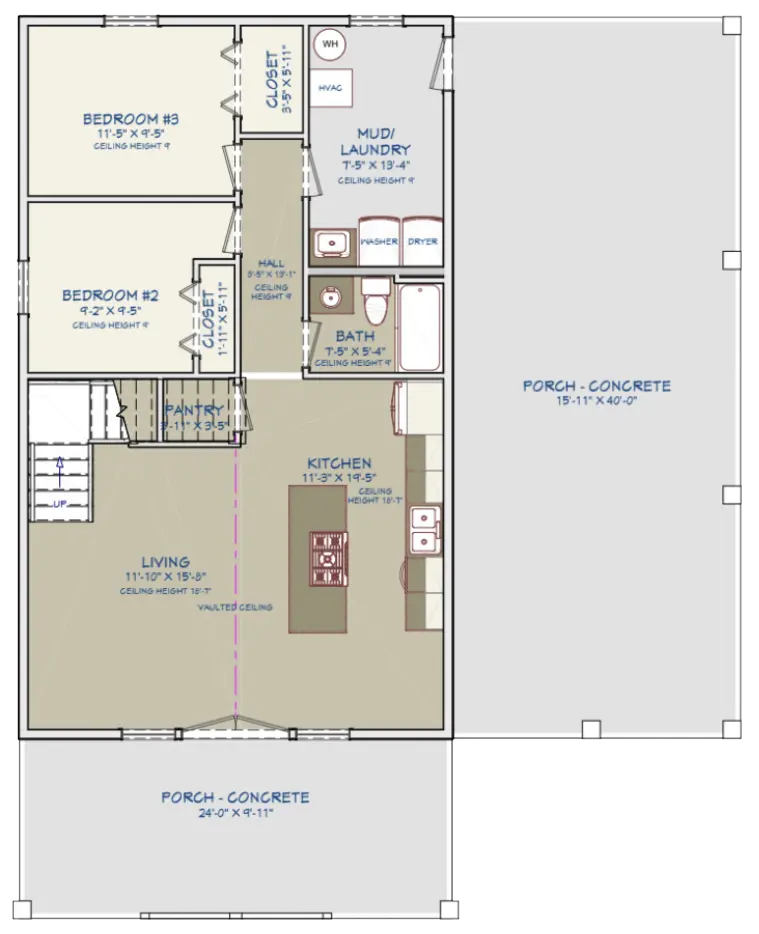
Main Floor Layout
Dyersburg Rendering
Second Floor Layout
Dyersburg Rendering

Plan Description

The Dyersburg is a bold, modern barn-style home designed to make a statement from every angle. Its soaring gabled front with massive windows floods the interior with natural light, while the dramatic timber accents add rustic warmth to the contemporary dark exterior. Perfect for scenic lots, this design blends modern living with a cozy lodge-like feel.

Exterior Features

  1. Showstopping Gable – Floor-to-ceiling windows framed by rich wood beams create stunning curb appeal and capture panoramic views.
  2. Expansive Porches – With 880 sq. ft. of covered outdoor living space, there’s room for entertaining, dining, or relaxing rain or shine.
  3. Compact Footprint – At 24' wide and 40' deep, the home fits comfortably on a variety of lot sizes while still feeling spacious inside.

Interior Layout

With 1,485 sq. ft. of living space across two floors, the Dyersburg is designed for both gathering and privacy.

  1. Open-Concept Main Floor – A vaulted great room flows into the kitchen and dining area, making it perfect for hosting and everyday life.
  2. Two Main-Level Bedrooms – Conveniently located on the first floor, Bedrooms 2 and 3 share a full bath and easy access to the laundry/mudroom.
  3. Private Upper-Level Retreat – The second floor is dedicated to the primary suite, complete with a walk-in closet, full bath, and open loft overlooking the great room.
  4. Functional Storage – Includes a walk-in pantry, multiple closets, and a well-planned laundry/mudroom entry.


Construction Specifications

Basic Layout Information
Bedrooms 3
Bathrooms 2
Garage Bays 0
Square Footage Breakdown
Main Level 1485 Sq Ft
Second Level 525 Sq Ft
Total Finished Area 2010 Sq Ft
Covered Areas (patios, porches, decks, etc) 880 Sq Ft
Exterior Dimensions
Width 40' 0"
Depth 40' 0"
Default Construction Stats
Default Foundation Type Slab
Default Exterior Wall Construction 2x6
Roof Construction Method Trusses
Roof Pitches 8/12 Primary
Main Level Ceiling Height 9'

Instant Cost to Build Estimate

Get a comprehensive cost estimate for building this plan. Our detailed quote includes all expenses, giving you a clear budget overview for your project.

Powered By Advanced House Plans ©

What's Included in a Plan Set?

Each set of home plans that we offer will provide you with the necessary information to build the home. There may be some adjustments necessary to the home plans or garage plans in order to comply with your state or county building codes. The following list shows what is included within each set of home plans that we sell.

Our blueprints include:

Cover Sheet: Shows the front elevation often times in a 3D color rendering and typical notes and requirements.

Cover Sheet

Exterior Elevations: Shows the front, rear and sides of the home including exterior materials, details and measurements

Exterior Finishes Sheet

Foundation Plans: will include a basement, crawlspace or slab depending on what is available for that home plan. (Please refer to the home plan's details sheet to see what foundation options are available for a specific home plan.) The foundation plan details the layout and construction of the foundation.

Foundation Plans Sheet

Floor Plans: Shows the placement of walls and the dimensions for rooms, doors, windows, stairways, etc. for each floor.

Electrical Plans: Shows the location of outlets, fixtures and switches. They are shown as a separate sheet to make the floor plans more legible.

Floor Plans and Electrical

Roof Plan

Roof Plans

Typical Wall Section, Stair Section, Cabinets

Typical Wall Section, Stair Section, Cabinets Sheet

If you have any additional questions about what you are getting in a plan set, contact us today.

Compare
You're saving $400 during our 25% off sale!
$1599
$1199
Apple Pay
Google Pay
Affirm Badge
AfterPay Badge

Upgrade Your Plan With Add-ons

Note: Add-ons may result in a longer turn-around time.