Images
Reverse
Layout
Specs
Estimate
Furniture
Print
To Top
Dandridge Rendering
Dandridge Rendering
Dandridge Rendering
Dandridge | 50048 - Exclusive

Farmhouse Style House Plan | Dandridge

3886
Sq Ft
4
Bedrooms
4
Bathrooms
3
Bays
69' 0"
Width
36' 0"
Depth

Floor Plan Images

Looking for something specific? We'll customize any plan to match your needs. Get your free alteration quote →
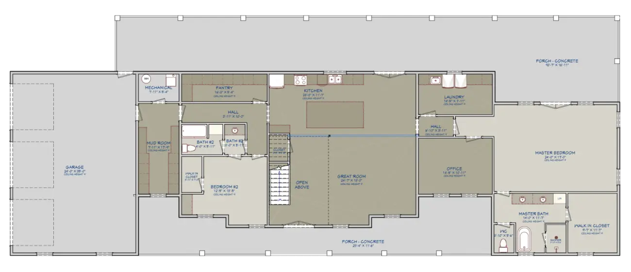
Main Floor Layout
Dandridge Rendering
Second Floor Layout
Dandridge Rendering

Plan Description

This beautifully crafted farmhouse delivers timeless curb appeal with a modern edge, featuring an attached side-load three-car garage that enhances both functionality and exterior charm. The welcoming facade is complemented by two large covered porches, creating inviting spaces to relax, entertain, and enjoy the outdoors in every season. From the moment you arrive, this home feels warm, spacious, and thoughtfully designed.


Inside, the heart of the home opens into a light-filled, open-concept main living area that seamlessly connects the great room and kitchen. The large kitchen is designed to impress with generous counter space, room for an oversized island, and a walk-in pantry that keeps everything organized and within reach. This central gathering space is perfect for hosting celebrations or enjoying everyday moments together.


Tucked away for privacy, the master wing serves as a true retreat on the main level. The spacious bedroom and luxurious ensuite bathroom offer a peaceful escape from the rest of the home, while thoughtful separation provides quiet and comfort. With an additional bedroom and full bath on the main level, this layout offers flexibility for guests or multi-generational living.


Upstairs, a central loft creates a versatile second living space ideal for a media room, play area, or cozy lounge. Two generously sized bedrooms flank the loft, each with convenient access to full bathrooms, offering privacy and comfort for family or guests. With four bedrooms, four bathrooms, and a smart blend of elegance and practicality, this farmhouse is designed to elevate everyday living while standing the test of time.

Construction Specifications

Basic Layout Information
Bedrooms 4
Bathrooms 4
Garage Bays 3
Square Footage Breakdown
Main Level 2704 Sq Ft
Second Level 1182 Sq Ft
Total Finished Area 3886 Sq Ft
Garage 885 Sq Ft
Covered Areas (patios, porches, decks, etc) 1785 Sq Ft
Exterior Dimensions
Width 69' 0"
Depth 36' 0"
Ridge Height 34' 0"
Default Construction Stats
Default Foundation Type Slab
Default Exterior Wall Construction 2x6
Roof Construction Method Trusses
Floor Construction Method I-Joists
Roof Pitches Primary 8/12, Secondary 12/12
Main Level Ceiling Height 9'
Second Level Ceiling Height 9'

Instant Cost to Build Estimate

Get a comprehensive cost estimate for building this plan. Our detailed quote includes all expenses, giving you a clear budget overview for your project.

Powered By Advanced House Plans ©

What's Included in a Plan Set?

Each set of home plans that we offer will provide you with the necessary information to build the home. There may be some adjustments necessary to the home plans or garage plans in order to comply with your state or county building codes. The following list shows what is included within each set of home plans that we sell.

Our blueprints include:

Cover Sheet: Shows the front elevation often times in a 3D color rendering and typical notes and requirements.

Cover Sheet

Exterior Elevations: Shows the front, rear and sides of the home including exterior materials, details and measurements

Exterior Finishes Sheet

Foundation Plans: will include a basement, crawlspace or slab depending on what is available for that home plan. (Please refer to the home plan's details sheet to see what foundation options are available for a specific home plan.) The foundation plan details the layout and construction of the foundation.

Foundation Plans Sheet

Floor Plans: Shows the placement of walls and the dimensions for rooms, doors, windows, stairways, etc. for each floor.

Electrical Plans: Shows the location of outlets, fixtures and switches. They are shown as a separate sheet to make the floor plans more legible.

Floor Plans and Electrical

Roof Plan

Roof Plans

Typical Wall Section, Stair Section, Cabinets

Typical Wall Section, Stair Section, Cabinets Sheet

If you have any additional questions about what you are getting in a plan set, contact us today.

Compare
You're saving $400 during our 20% off sale!
$1999
$1599
Apple Pay
Google Pay
Affirm Badge
AfterPay Badge

Upgrade Your Plan With Add-ons

Note: Add-ons may result in a longer turn-around time.