Images
Reverse
Layout
Specs
Estimate
Furniture
Print
To Top
Crossville Rendering
Crossville Rendering
Crossville Rendering
EXCLUSIVE
Crossville Rendering
Crossville | 50028 - Exclusive
New: Steel kits now available for all Barndominium plans! Click here for more information.

Barndominium Style House Plan | Crossville

3302
Sq Ft
5
Bedrooms
5
Bathrooms
3
Bays
111' 0"
Width
78' 6"
Depth

Floor Plan Images

Looking for something specific? We'll customize any plan to match your needs. Get your free alteration quote →
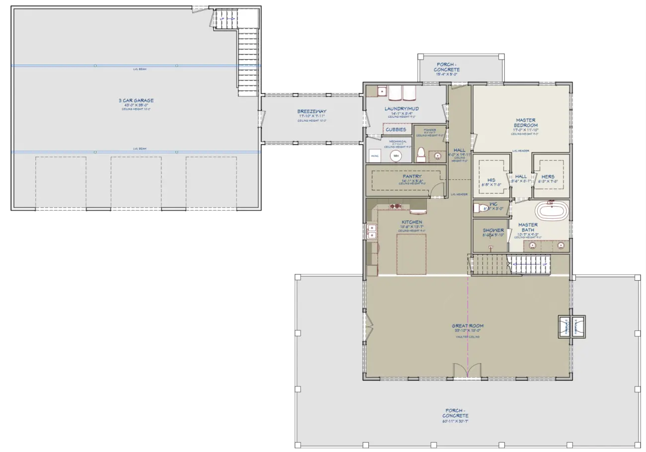
Main Floor Layout
Crossville Rendering
Second Floor Layout
Crossville Rendering

Plan Description

Picture yourself pulling up to your dream home — a spacious barndominium that blends rustic charm with modern luxury. This 5-bedroom, 4.5-bath layout offers an expansive open concept main living area, perfect for family gatherings, entertaining, or simply enjoying everyday life with effortless flow between the kitchen, dining, and living spaces. High ceilings and abundant natural light create a welcoming atmosphere where every moment feels elevated.


The master suite is located on the main level for convenience and privacy, giving you a serene retreat complete with a spa-inspired bathroom and generous closet space. Four additional bedrooms provide flexibility for guests, children, home offices, or creative spaces — each connected to a full bathroom to ensure comfort and ease for everyone. Imagine morning routines that feel calm instead of rushed, and evenings spent enjoying quiet luxury in a space designed with you in mind.


Beyond the living areas, this home truly shines with its large garage, offering ample room for vehicles, equipment, or a workshop area tailored to your hobbies. Barndominiums are known for their durability and character, but this one takes it further with modern conveniences and functional design. If you’re looking for a home that combines open, light-filled living, practical space, and standout architectural appeal, this barndominium is the perfect place to plant roots and make lasting memories.

Construction Specifications

Basic Layout Information
Bedrooms 5
Bathrooms 5
Garage Bays 3
Square Footage Breakdown
Main Level 2099 Sq Ft
Second Level 1203 Sq Ft
Total Finished Area 3302 Sq Ft
Garage 1580 Sq Ft
Covered Areas (patios, porches, decks, etc) 1249 Sq Ft
Optional Bonus Area (Not included in total sq ft) 670 Sq Ft
Exterior Dimensions
Width 111' 0"
Depth 78' 6"
Ridge Height 28' 0"
Default Construction Stats
Default Foundation Type Slab
Default Exterior Wall Construction 2x6
Roof Construction Method Trusses
Floor Construction Method I-Joists
Roof Pitches Primary 6/12
Main Level Ceiling Height 9'
Second Level Ceiling Height 8'

Instant Cost to Build Estimate

Get a comprehensive cost estimate for building this plan. Our detailed quote includes all expenses, giving you a clear budget overview for your project.

Powered By Advanced House Plans ©

What's Included in a Plan Set?

Each set of home plans that we offer will provide you with the necessary information to build the home. There may be some adjustments necessary to the home plans or garage plans in order to comply with your state or county building codes. The following list shows what is included within each set of home plans that we sell.

Our blueprints include:

Cover Sheet: Shows the front elevation often times in a 3D color rendering and typical notes and requirements.

Cover Sheet

Exterior Elevations: Shows the front, rear and sides of the home including exterior materials, details and measurements

Exterior Finishes Sheet

Foundation Plans: will include a basement, crawlspace or slab depending on what is available for that home plan. (Please refer to the home plan's details sheet to see what foundation options are available for a specific home plan.) The foundation plan details the layout and construction of the foundation.

Foundation Plans Sheet

Floor Plans: Shows the placement of walls and the dimensions for rooms, doors, windows, stairways, etc. for each floor.

Electrical Plans: Shows the location of outlets, fixtures and switches. They are shown as a separate sheet to make the floor plans more legible.

Floor Plans and Electrical

Roof Plan

Roof Plans

Typical Wall Section, Stair Section, Cabinets

Typical Wall Section, Stair Section, Cabinets Sheet

If you have any additional questions about what you are getting in a plan set, contact us today.

Compare
You're saving $380 during our 20% off sale!
$1899
$1519
Apple Pay
Google Pay
Affirm Badge
AfterPay Badge

Upgrade Your Plan With Add-ons

Note: Add-ons may result in a longer turn-around time.