Images
Reverse
Layout
Specs
Estimate
Furniture
Print
To Top
Cornersville Rendering
Cornersville Rendering
Cornersville Rendering
EXCLUSIVE
Cornersville Rendering
Cornersville | 50036 - Exclusive

Farmhouse Style House Plan | Cornersville

1634
Sq Ft
2
Bedrooms
3
Bathrooms
2
Bays
68' 0"
Width
47' 0"
Depth

Floor Plan Images

Looking for something specific? We'll customize any plan to match your needs. Get your free alteration quote →
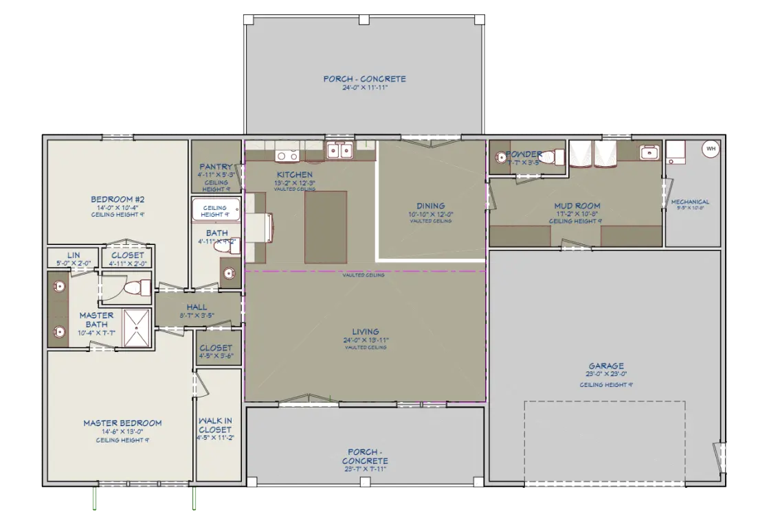
Main Floor Layout
Cornersville Rendering

Plan Description

This inviting farmhouse design blends classic charm with everyday practicality, featuring two welcoming porches that extend your living space and set the tone for relaxed, comfortable living. The attached two-car garage offers convenience and protection from the elements, while the home’s timeless exterior creates instant curb appeal that feels both warm and enduring.


Inside, the open-concept main area serves as the heart of the home, seamlessly connecting the kitchen, dining, and living spaces for effortless entertaining and easy day-to-day living. Natural light fills the space, highlighting the farmhouse-inspired details and creating an airy, comfortable environment that feels both spacious and inviting.


A large, well-designed mudroom anchors the home with exceptional functionality, providing ample storage for coats, shoes, and gear as you transition in from the garage. With two bedrooms and three bathrooms, this farmhouse offers flexibility for guests, hobbies, or a private office, while maintaining a thoughtful balance of style, comfort, and smart design throughout.

Construction Specifications

Basic Layout Information
Bedrooms 2
Bathrooms 3
Garage Bays 2
Square Footage Breakdown
Main Level 1634 Sq Ft
Total Finished Area 1634 Sq Ft
Garage 556 Sq Ft
Covered Areas (patios, porches, decks, etc) 480 Sq Ft
Exterior Dimensions
Width 68' 0"
Depth 47' 0"
Ridge Height 21' 0"
Default Construction Stats
Default Foundation Type Slab
Default Exterior Wall Construction 2x6
Roof Construction Method Trusses
Floor Construction Method I-Joists
Roof Pitches Primary 10/12
Main Level Ceiling Height 9'

Instant Cost to Build Estimate

Get a comprehensive cost estimate for building this plan. Our detailed quote includes all expenses, giving you a clear budget overview for your project.

Powered By Advanced House Plans ©

What's Included in a Plan Set?

Each set of home plans that we offer will provide you with the necessary information to build the home. There may be some adjustments necessary to the home plans or garage plans in order to comply with your state or county building codes. The following list shows what is included within each set of home plans that we sell.

Our blueprints include:

Cover Sheet: Shows the front elevation often times in a 3D color rendering and typical notes and requirements.

Cover Sheet

Exterior Elevations: Shows the front, rear and sides of the home including exterior materials, details and measurements

Exterior Finishes Sheet

Foundation Plans: will include a basement, crawlspace or slab depending on what is available for that home plan. (Please refer to the home plan's details sheet to see what foundation options are available for a specific home plan.) The foundation plan details the layout and construction of the foundation.

Foundation Plans Sheet

Floor Plans: Shows the placement of walls and the dimensions for rooms, doors, windows, stairways, etc. for each floor.

Electrical Plans: Shows the location of outlets, fixtures and switches. They are shown as a separate sheet to make the floor plans more legible.

Floor Plans and Electrical

Roof Plan

Roof Plans

Typical Wall Section, Stair Section, Cabinets

Typical Wall Section, Stair Section, Cabinets Sheet

If you have any additional questions about what you are getting in a plan set, contact us today.

Compare
You're saving $280 during our 20% off sale!
$1399
$1119
Apple Pay
Google Pay
Affirm Badge
AfterPay Badge

Upgrade Your Plan With Add-ons

Note: Add-ons may result in a longer turn-around time.