Images
Reverse
Layout
Specs
Estimate
Furniture
Print
To Top
Byrdstown Rendering
Byrdstown Rendering
Byrdstown Rendering
Byrdstown | 50043 - Exclusive

Farmhouse Style House Plan | Byrdstown

2588
Sq Ft
4
Bedrooms
3
Bathrooms
0
Bays
50' 0"
Width
30' 0"
Depth

Floor Plan Images

Looking for something specific? We'll customize any plan to match your needs. Get your free alteration quote →
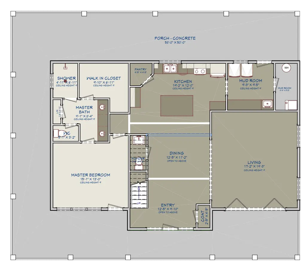
Main Floor Layout
Byrdstown Rendering
Second Floor Layout
Byrdstown Rendering

Plan Description

This captivating farmhouse design makes a statement with its large wrap-around porch, creating an inviting outdoor living space that enhances both curb appeal and everyday enjoyment. Perfect for rocking chairs, porch swings, and seasonal décor, the porch wraps the home in warmth and charm while setting the tone for relaxed, country-inspired living with modern comfort woven throughout.


Inside, the home centers around a large, beautifully designed kitchen that serves as the heart of the main level. Generous counter space, abundant cabinetry, and room to gather make it ideal for entertaining and daily life alike. Just off the kitchen, a semi-private living room offers a cozy retreat—connected to the main living areas yet subtly set apart for quieter moments, movie nights, or relaxed evenings.


The large master suite on the main level provides a peaceful escape with ample space, a luxurious bath, and generous storage. Upstairs, a bright second-level loft creates a flexible gathering or study space, perfectly positioned between three additional bedrooms that offer comfort and privacy for family or guests. Thoughtfully planned and rich in farmhouse character, this home delivers timeless style with spaces designed to truly live in.

Construction Specifications

Basic Layout Information
Bedrooms 4
Bathrooms 3
Garage Bays 0
Square Footage Breakdown
Main Level 1568 Sq Ft
Second Level 1020 Sq Ft
Total Finished Area 2588 Sq Ft
Covered Areas (patios, porches, decks, etc) 1330 Sq Ft
Exterior Dimensions
Width 50' 0"
Depth 30' 0"
Ridge Height 27' 0"
Default Construction Stats
Default Foundation Type Slab
Default Exterior Wall Construction 2x6
Roof Construction Method Trusses
Floor Construction Method I-Joists
Roof Pitches Primary 6/12
Main Level Ceiling Height 9'
Second Level Ceiling Height 9'

Instant Cost to Build Estimate

Get a comprehensive cost estimate for building this plan. Our detailed quote includes all expenses, giving you a clear budget overview for your project.

Powered By Advanced House Plans ©

What's Included in a Plan Set?

Each set of home plans that we offer will provide you with the necessary information to build the home. There may be some adjustments necessary to the home plans or garage plans in order to comply with your state or county building codes. The following list shows what is included within each set of home plans that we sell.

Our blueprints include:

Cover Sheet: Shows the front elevation often times in a 3D color rendering and typical notes and requirements.

Cover Sheet

Exterior Elevations: Shows the front, rear and sides of the home including exterior materials, details and measurements

Exterior Finishes Sheet

Foundation Plans: will include a basement, crawlspace or slab depending on what is available for that home plan. (Please refer to the home plan's details sheet to see what foundation options are available for a specific home plan.) The foundation plan details the layout and construction of the foundation.

Foundation Plans Sheet

Floor Plans: Shows the placement of walls and the dimensions for rooms, doors, windows, stairways, etc. for each floor.

Electrical Plans: Shows the location of outlets, fixtures and switches. They are shown as a separate sheet to make the floor plans more legible.

Floor Plans and Electrical

Roof Plan

Roof Plans

Typical Wall Section, Stair Section, Cabinets

Typical Wall Section, Stair Section, Cabinets Sheet

If you have any additional questions about what you are getting in a plan set, contact us today.

Compare
You're saving $340 during our 20% off sale!
$1699
$1359
Apple Pay
Google Pay
Affirm Badge
AfterPay Badge

Upgrade Your Plan With Add-ons

Note: Add-ons may result in a longer turn-around time.