Images
Reverse
Layout
Specs
Estimate
Furniture
Print
To Top
Bluff City Rendering
Bluff City Rendering
Bluff City Rendering
EXCLUSIVE
Bluff City Rendering
+3
Bluff City | 50047 - Exclusive

Farmhouse Style House Plan | Bluff City

3302
Sq Ft
4
Bedrooms
3
Bathrooms
2
Bays
117' 0"
Width
60' 0"
Depth

Floor Plan Images

Looking for something specific? We'll customize any plan to match your needs. Get your free alteration quote →
Main Floor Layout
Bluff City Rendering

Plan Description

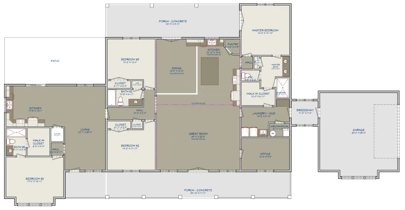
This thoughtfully designed farmhouse offers incredible versatility and timeless appeal, anchored by an attached side-load two-car garage that enhances curb appeal while providing everyday convenience. With three distinct outdoor living areas, this home invites you to enjoy morning coffee, casual entertaining, or quiet evenings surrounded by fresh air. The classic farmhouse exterior sets the stage for a home that balances charm, function, and flexibility.


Inside, the open-concept main living area creates a warm, connected space ideal for both daily living and hosting guests. The kitchen, dining, and living room flow effortlessly together, filled with natural light and designed for comfort. A dedicated home office adds valuable work-from-home flexibility, while the large master suite serves as a private retreat with a spacious bedroom and spa-inspired bathroom designed for relaxation.


Adding exceptional value is a second, apartment-style living space—perfect for guests, extended family, or rental potential—complete with its own living room, kitchen, bedroom, and full bathroom. This private secondary home provides independence without sacrificing connection, making this farmhouse an ideal solution for multi-generational living or income opportunities. With its smart layout and inviting design, this home truly adapts to the way you live.

Construction Specifications

Basic Layout Information
Bedrooms 4
Bathrooms 3
Garage Bays 2
Square Footage Breakdown
Main Level 3302 Sq Ft
Total Finished Area 3302 Sq Ft
Garage 601 Sq Ft
Covered Areas (patios, porches, decks, etc) 998 Sq Ft
Exterior Dimensions
Width 117' 0"
Depth 60' 0"
Ridge Height 27' 0"
Default Construction Stats
Default Foundation Type Slab
Default Exterior Wall Construction 2x6
Roof Construction Method Trusses
Floor Construction Method I-Joists
Roof Pitches Primary 10/12, Secondary 6/12
Main Level Ceiling Height 9'

Instant Cost to Build Estimate

Get a comprehensive cost estimate for building this plan. Our detailed quote includes all expenses, giving you a clear budget overview for your project.

Powered By Advanced House Plans ©

What's Included in a Plan Set?

Each set of home plans that we offer will provide you with the necessary information to build the home. There may be some adjustments necessary to the home plans or garage plans in order to comply with your state or county building codes. The following list shows what is included within each set of home plans that we sell.

Our blueprints include:

Cover Sheet: Shows the front elevation often times in a 3D color rendering and typical notes and requirements.

Cover Sheet

Exterior Elevations: Shows the front, rear and sides of the home including exterior materials, details and measurements

Exterior Finishes Sheet

Foundation Plans: will include a basement, crawlspace or slab depending on what is available for that home plan. (Please refer to the home plan's details sheet to see what foundation options are available for a specific home plan.) The foundation plan details the layout and construction of the foundation.

Foundation Plans Sheet

Floor Plans: Shows the placement of walls and the dimensions for rooms, doors, windows, stairways, etc. for each floor.

Electrical Plans: Shows the location of outlets, fixtures and switches. They are shown as a separate sheet to make the floor plans more legible.

Floor Plans and Electrical

Roof Plan

Roof Plans

Typical Wall Section, Stair Section, Cabinets

Typical Wall Section, Stair Section, Cabinets Sheet

If you have any additional questions about what you are getting in a plan set, contact us today.

Compare
You're saving $380 during our 20% off sale!
$1899
$1519
Apple Pay
Google Pay
Affirm Badge
AfterPay Badge

Upgrade Your Plan With Add-ons

Note: Add-ons may result in a longer turn-around time.